• 賃貸HOME>
  • 広島市東区若草町の賃貸 マンション詳細

広島市東区若草町の賃貸

  物件所在地 家賃 敷 金
礼 金
共益費 駐車場 間取り
広島市東区若草町 205,000円 3ヶ月
1ヶ月
無し円 有り
26250円/月
2LDK

こちらの物件はご契約となりましたのでお問合せいただけません。


        

広島駅目の前の高級賃貸マンション!!オール電化♪

物件種別 賃貸マンション 物件番号 No. 5129
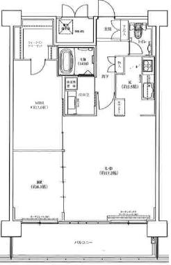
駐車場 有り26250円/月 間取り(広さ) 2LDK
(76.21m²)
物件所在地 広島市東区若草町 学区 二葉中学校 尾長小学校
敷 金/礼 金 敷金:3ヶ月(615000円)
礼金:1ヶ月(205000円)
沿線/駅(分) 電車: JR山陽本線広島駅徒歩1分
バス:  徒歩 分
間取り詳細 LDK20/洋7.6/洋6 構造 鉄筋コンクリート造
共益費/管理費 無し円
設備 バス・トイレ別、シャワー、システムキッチン、給湯、S.ドレッサー、W.INクローゼット、CATV、BSアンテナ、オートロック、バルコニー、フローリング、宅配ボックス、駐輪場、バイク置き場、ウォシュレット、冷暖房、TVドアホン、エレベーター、対面or独立キッチン、浴室乾燥機、ペット飼育可、インターネット対応、駐車場
備考 南向きバルコニー 3口IHクッキングヒーター 下駄箱
脱衣場 独立洗面台 室内洗濯機置場 ペアガラス
セキュリティサービス
取引態様:仲介

こちらの物件はご契約となりましたのでお問合せいただけません。